써니쉐어 3호 3층 D
							
								
								
								
							
						
						경기도 평택시 고덕동 2003-7 3층
소개합니다
							- 24년 준공 첫입주
- 삼상 현장 2번게이트까지 15-20분(도보)
-깔끔한 화이트톤
- 드림교회 근처
-각방 화장실/ 각방에어컨
-관리인 상주하며 공용공간 청소
-민원발생시 즉시처리
					- 삼상 현장 2번게이트까지 15-20분(도보)
-깔끔한 화이트톤
- 드림교회 근처
-각방 화장실/ 각방에어컨
-관리인 상주하며 공용공간 청소
-민원발생시 즉시처리
방 이용 방법
								-실내흡연 금지
-입주는 대면 또는 비대면(협의)
						-입주는 대면 또는 비대면(협의)
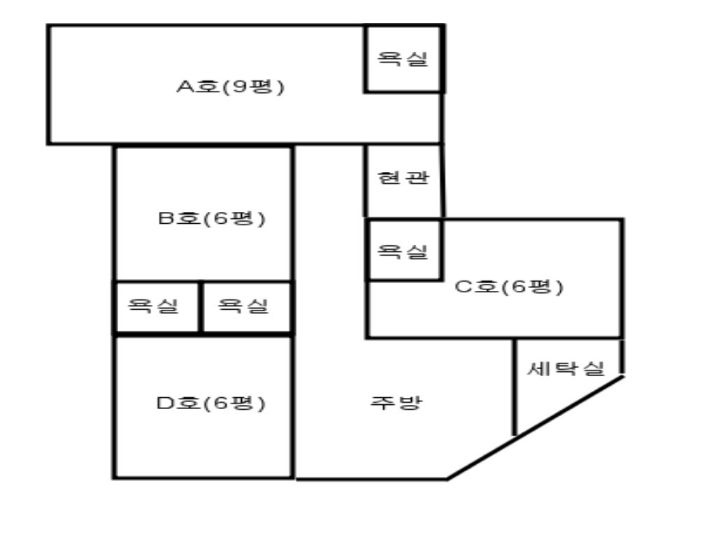
공간 기본 정보
- 
									방 1개 
- 
									화장실 1개 
- 
									주방 0개 
- 
									거실 0개 
- 전용 면적 6평 (20m²)
- 건물 유형 쉐어하우스
- 엘리베이터 있음
- 주차 여부 무료주차(선착순)
주차 상세 정보
								
									최대3대 주차가능합니다
								
							기본 옵션
- 
									냉장고 
- 
									세탁기 
- 
									에어컨 
- 
									싱크대 
- 
									와이파이 
그 밖의 옵션
- 도어락 
- 전자레인지 
- 신발장 
- 커튼 
추가 설명
								-깔끔하게 청소해 바로 입주 가능합니다.
							
						교통 & 위치
							경기도 평택시 고덕동 2003-7 3층
						
						
							-집앞 버스장류장
						
						계약 정보
최소 계약 기간 1주
| 임대료 (1주) | 관리비용 (1주) | 청소비용 (퇴실 후 청소) | 보증금 (퇴실 후 환급) | 150,000원 | 0원 | 30,000원 | 330,000원 | 
|---|
장기계약 할인
- 
													4주 이상 계약 시 10% 할인
빠른입주 할인
- 
													3일 이내 입주 시 5만 원 할인
관리비 포함항목
- 
									가스 
- 
									수도 
- 
									인터넷 
- 
									전기 
관리비 상세설명
								포함된 항목을 과도하게 사용하는 경우
추가 관리비를 요청할 수 있습니다.
							
						추가 관리비를 요청할 수 있습니다.
환불 규정
- 입주일 15일 이전 : 임대료와 계약 수수료의 90% 환불
- 입주일 14일 ~ 8일 이전 : 임대료와 계약 수수료의 70% 환불
- 입주일 7일 ~ 1일 이전 : 임대료와 계약 수수료의 50% 환불
- 입주일 당일 : 환불 불가
안내 사항
· 결제 당일 취소 시, 환불 규정과 관계 없이 임대료와 계약 수수료 합계의 10%만 위약금으로 부과됩니다.
  단, 무료 취소 기간에 해당하는 경우 전액 환불됩니다.
· 관리비, 청소비, 보증금은 전액 환불됩니다.
· 환불 규정은 호스트의 설정에 따라 달라집니다.
- 
								
								
									  
- 
								노희철본인인증 완료 평택시 고덕동 삼성반도체 인근 쉐어하우스입니다. 
이용 후기 1
- 
										이*훈 2025년 10월감사합니다
150,000 원 /1주
- 방 1
- 화장실 1
- 주방 0
- 거실 0
- 
										
											4주 이상 계약 시 10% 할인135,000원 / 1주 
- 
										
											오늘부터 3일 이내 입주 시5만 원 할인 









 
				